Montages
Paris Bercy Charenton : Yes We Camp, Plateau Urbain, Coup de pousses et Ancoats vont activer un hectare le long de la petite ceinture
Remi Cambau
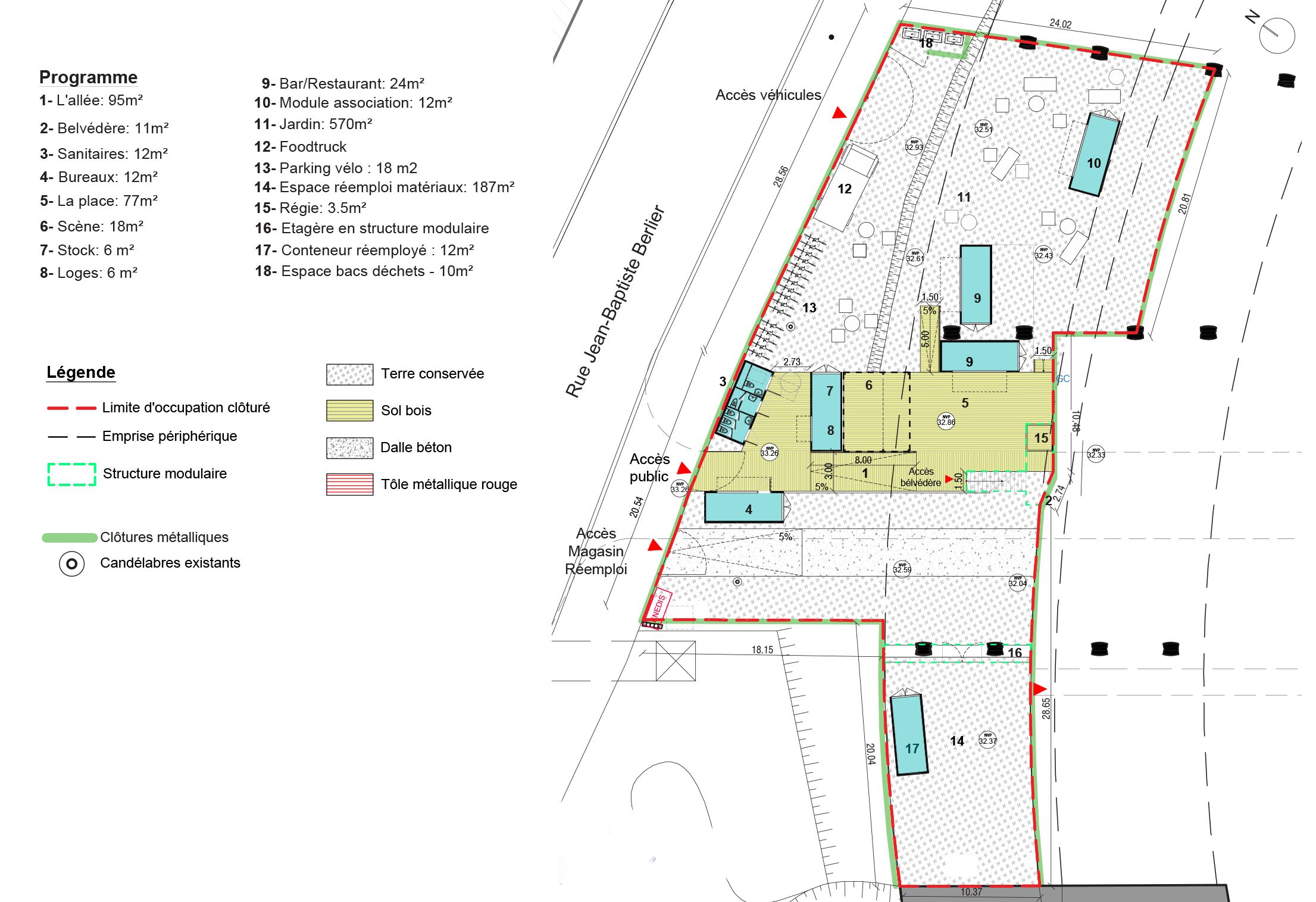
Au bout du secteur Bercy, SNCF Immo a lancé en février 2021 avec la Ville de Paris et la Semapa un appel pour deux fonciers le long du boulevard Poniatowski et de la petite ceinture. Les lauréats sont désignés.
Pas encore abonné ?
Profitez d'un essai

Favoris
Se connecter
Contact