Stratégies
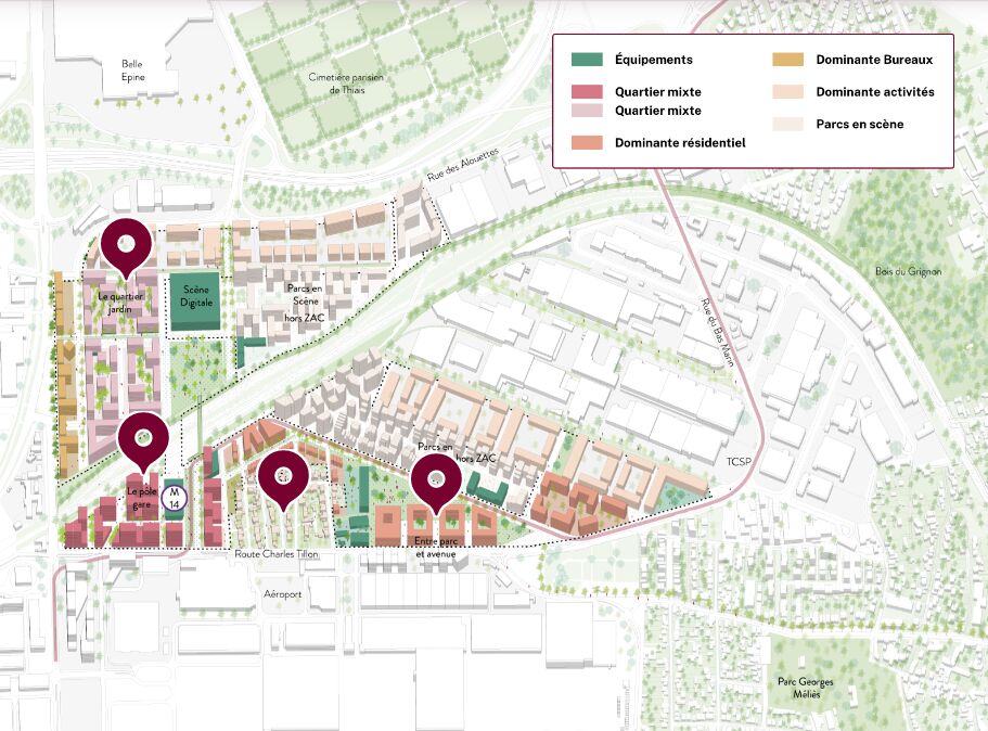
Orly/Thiais : le Sénia s'active autour de "Parcs en scène” et de la future gare du Grand Paris Express
Gabrielle Trottmann
Le lauréat d'Inventons la Métropole du Grand Paris, Linkcity, vient de déposer une première demande de permis d'aménager. Tout autour, une ZAC d'une quarantaine d'hectares doit être créée en 2022.
Pas encore abonné ?
Profitez d'un essai

Favoris
Se connecter
Contact