Stratégies
Le Mans engage une réflexion sur la transformation et la valorisation de son centre-ville à horizon 10 ans
Ines Edelgarcia
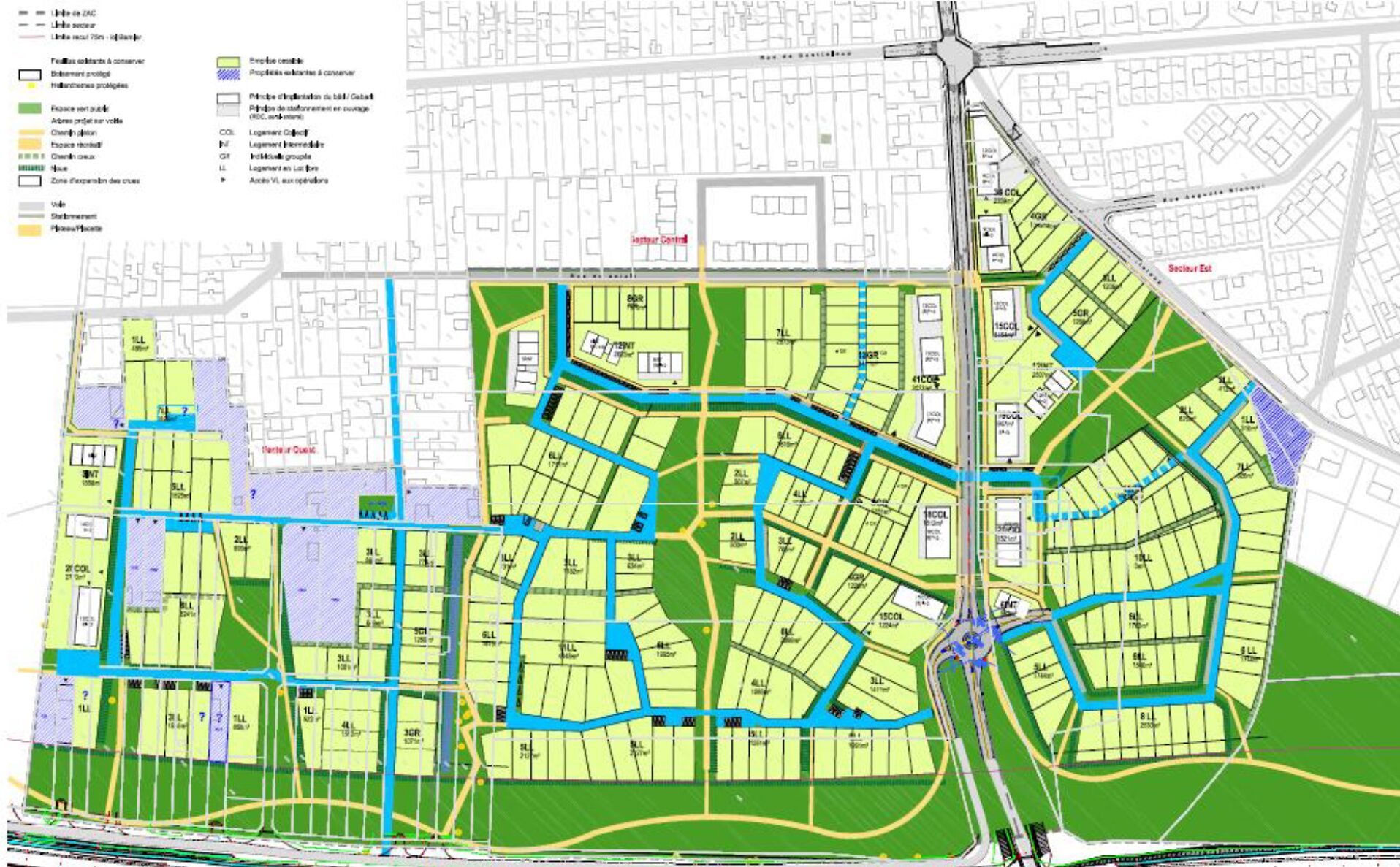
Parce que les projets immobiliers, d'aménagement et de transports vont transformer à vue d’œil le centre-ville dans les prochaines années, la Ville du Mans et le Mans Métropole lance des études de plan guide sur un périmètre élargi du centre-ville.

Favoris
Se connecter
Contact