Appels d'offres
Sainte-Adresse : l'EPF de Normandie cède à Nexity le foncier de l'école nationale de la Marine
Remi Cambau
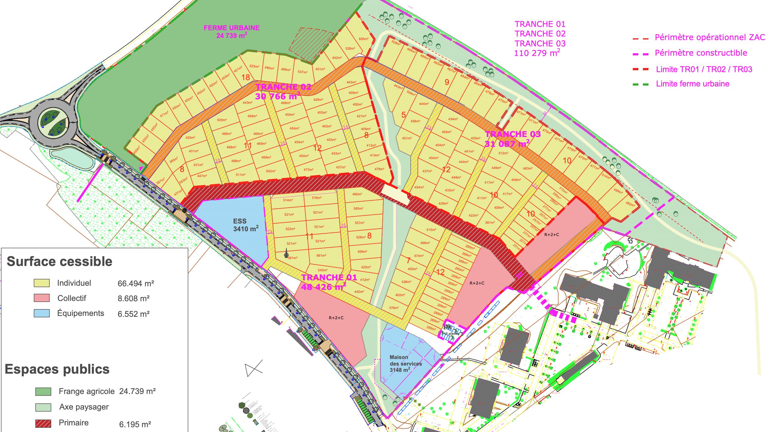
L'AUC, urbaniste et Michel Desvigne Paysage en seront les concepteurs, pour un mix de réhabilitation et de construction. L'appel à projet remporté par Nexity concerne environ 270 logements, sociaux et de standing, sur le belvédère du Cap de la Hève, à l'extrémité ouest de l'agglomération havraise.
Pas encore abonné ?
Profitez d'un essai

Favoris
Se connecter
Contact