Appels d'offres
Ille-et-Vilaine : à Liffré, appel à projets pour un programme résidentiel rue de la Bretonnière
Octavien Thiebaud
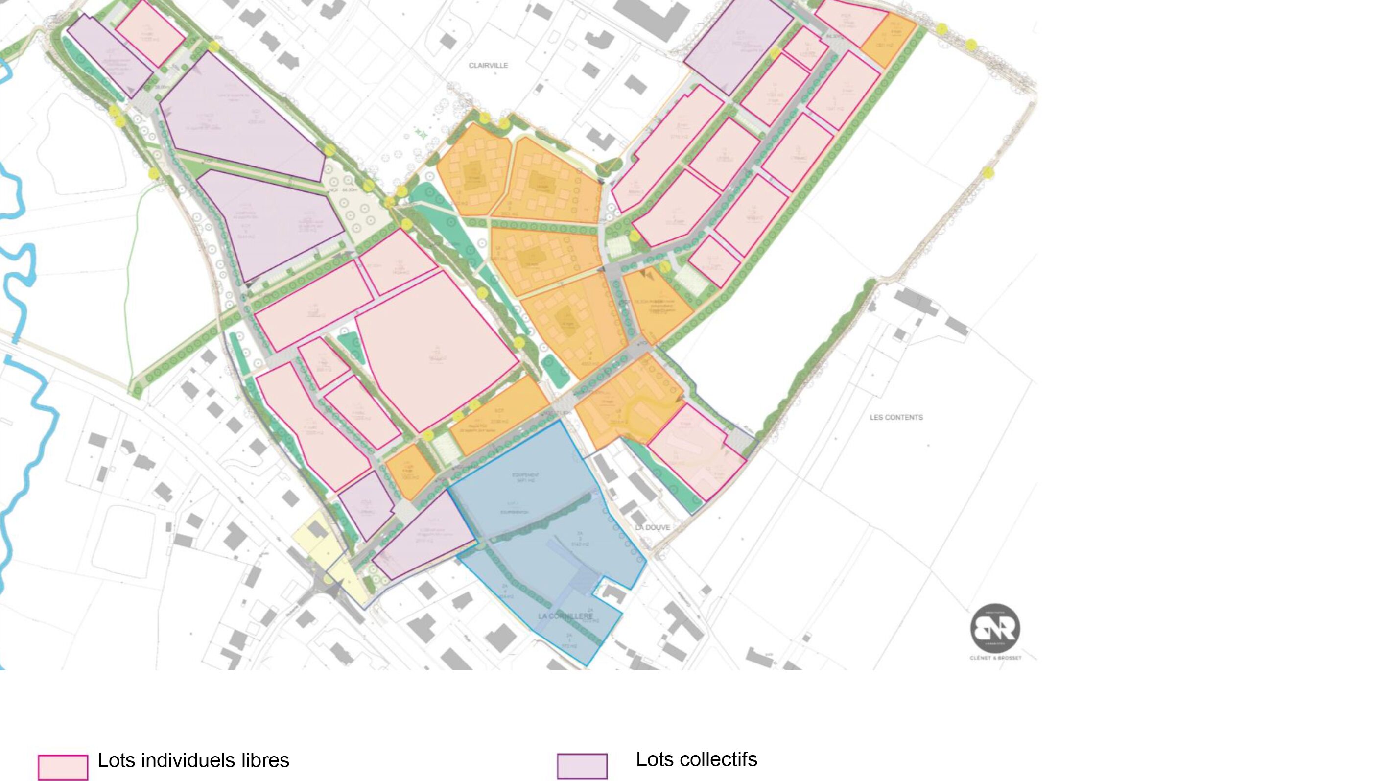
La Ville souhaite faire appel à un groupement comprenant un opérateur de logements privés et un bailleur social pour la réalisation d’une opération à dominante habitat comprenant au moins 25% de logements sociaux. Il s'agit de
Pas encore abonné ?
Profitez d'un essai

Favoris
Se connecter
Contact