Stratégies
Gard : à Bagnols-sur-Cèze, un îlot d'interface entre Action Coeur de Ville et NPNRU
Imran Alsaadi
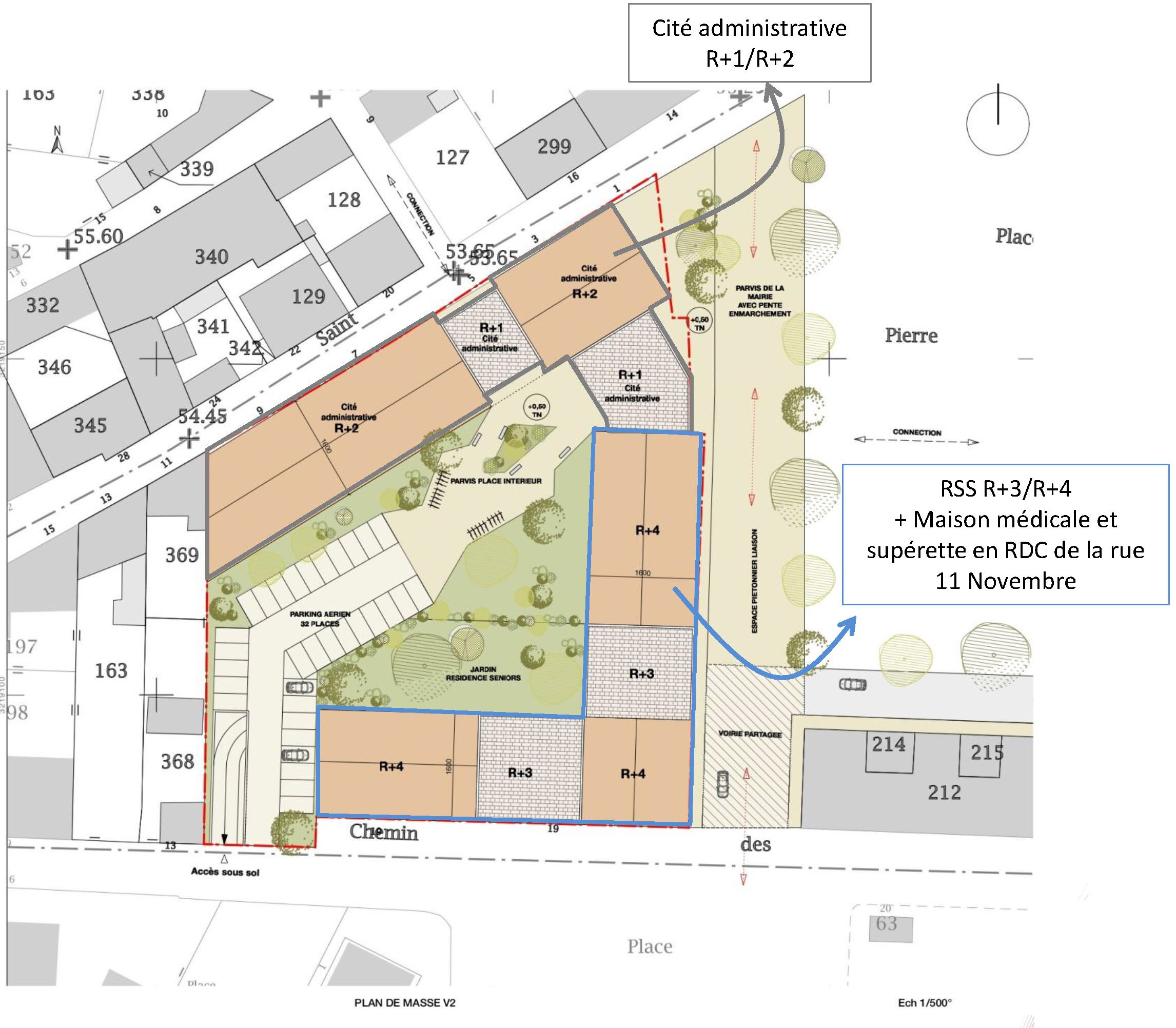
La SPL30, aménageur concessionnaire, recherche une MOE urbaine pour l'îlot Carcaixent, à la croisée des enjeux urbains de cette commune de plus de 18 000 habitants.

Favoris
Se connecter
Contact