Stratégies
Arras : la transformation du quartier de la gare se poursuit sur l’îlot Bergaigne
Alexia Conrath
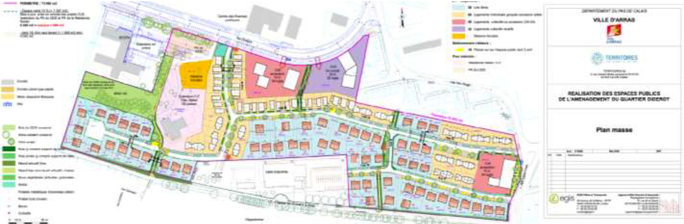
La Communauté urbaine d'Arras s’attèle aujourd’hui à une nouvelle étape de la déclinaison opérationnelle du master plan gare 2030.
Pas encore abonné ?
Profitez d'un essai

Favoris
Se connecter
Contact